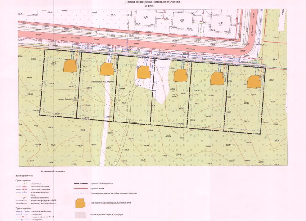
Документация по планировке территории земельного участка по ул. Южная (вблизи жилого дома № 29) - комплексное освоение в целях жилищного строительства
Документация по планировке территории земельного участка по ул. Южная (вблизи жилого дома № 29):
- разработана на основании постановления администрации Снежинского городского округа от 24.09.2013 №1414,
- утверждена постановления администрации Снежинского городского округа от 23.12.2013 №1982.










